当前位置: 首页 > 热装楼盘 > taptap点点亚洲体育 > 江南新城300平米户型解析
江南新城300平米户型解析
来源:taptapvip入口装饰 浏览: 更新时间:2020-04-07 16:24:17
        项目地址:江南新城

  户型面积:300平米

  风格介绍:欧式

  设计师: 康立翅

 

 

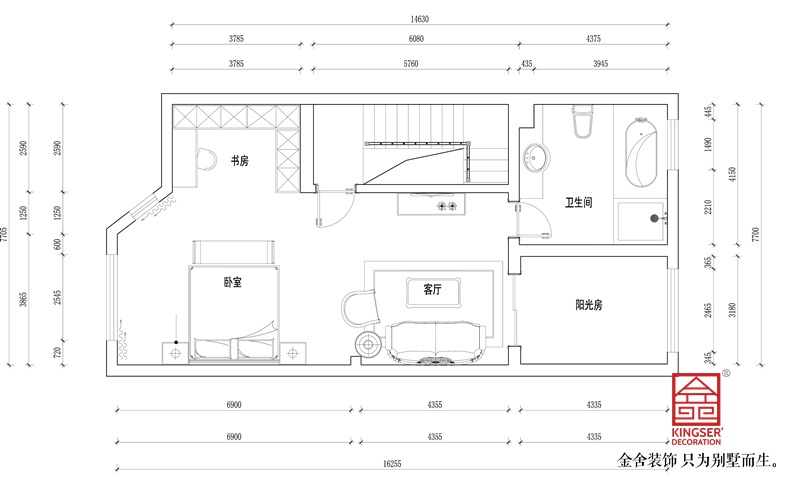
三层原始图
三层布置图

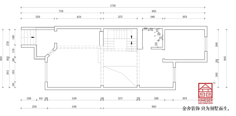
​一层平面图
 
一层布置图

  一层拆改解析:

  负一层:把原有的一个空间分为两个独立的空间,增加了公共衣帽间,提供一个功能区,同时也保证了卧室的独立性和私密性。

  二层:在挑空区域的两边新砌了墙体,使得两间卧室增强私密性,同时也使一层的挑空更完整。


 

服务设计师

擅长风格:美式风格 轻奢风格

擅长户型:别墅 跃层

设计理念:设计因使用者而存在 以人为本 和谐自然

预约设计师

装修无忧 免费报价

taptap点点手机网页版

相关案例

江南新城400平新中式风格别墅装修实景

风格:中式风格 户型:别墅 面积:400㎡

江南新城300平米欧式风格装修效果图

风格:欧式风格 户型:别墅 面积:300㎡

江南新城380平米现代轻奢装修效果图

风格:轻奢风格 户型:别墅 面积:380㎡

江南新城300平米欧式风格装修效果图

风格:欧式风格 户型:别墅 面积:400㎡

家装资讯

2025-08-20 别墅厨房装修:避开这些坑,做饭更轻松​
2025-07-06 石家庄装修公司揭秘:法式风格吊顶的选择与装修要点
2025-06-27 石家庄别墅装修小课堂:欧式家具清洁保养全攻略
2025-06-17 石家庄室内装修:打造不压抑的高级意式风格
2025-06-13 石家庄夏季别墅装修,铺地板的关键注意事项
2025-06-12 家里装修有必要装新风系统吗?
快速报价

taptapvip入口装饰 只为别墅而生

预约设计师