当前位置: 首页 > 热装楼盘 > taptap点点亚洲体育 > 林荫大院137装修户型解析
林荫大院137装修户型解析
来源:taptapvip入口装饰 浏览: 更新时间:2020-04-08 11:15:35
       小区:林荫大院

       面积:137

       风格:美式

       设计师:冯海燕
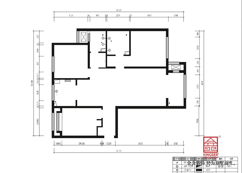
原始户型
拆改平面图

 

  1. 由于入户鞋帽柜区和进门次卧室的衣柜位置空间较小,使用面积不大,不能满足日常使用,所以将墙体进行整体的拆除,通过后期新建石膏板隔墙,做双面背靠背的衣帽柜,节省了至少10公分的墙体面积,同时加大了进门入户鞋柜和卧室衣柜。大大改善了收纳功能。

  2. 将主卫与主卧室隔墙拆除。由于业主想要一个较大的卧室空间,能同时放下1.8米的床和两个床头柜,同时又不牺牲衣柜的功能,所以将墙体拆除,通过缩小主卫空间达到业主需求,且不影响卫生间使用。

 

服务设计师

擅长风格:美式风格 轻奢风格

擅长户型:别墅 四居

设计理念:创意是设计的灵魂。兼顾生活习惯、家居空间最大化。满足自我、发展利用空间。层次鲜明,合理利用光线,使房屋性价比得到最大价值。

预约设计师

装修无忧 免费报价

taptap点点手机网页版

相关案例

林荫大院260平米港式风格装修实景

风格:港式风格 户型:别墅 面积:260㎡

林荫大院206平米简欧风格装修效果图

风格:欧式风格 户型:四居 面积:206㎡

林荫大院137平米现代简约装修效果图

风格:现代简约风格 户型:三居 面积:137㎡

林荫大院260平米轻奢风格装修效果图

风格:轻奢风格 户型:其他 面积:260㎡

家装资讯

2025-08-20 别墅厨房装修:避开这些坑,做饭更轻松​
2025-07-06 石家庄装修公司揭秘:法式风格吊顶的选择与装修要点
2025-06-27 石家庄别墅装修小课堂:欧式家具清洁保养全攻略
2025-06-17 石家庄室内装修:打造不压抑的高级意式风格
2025-06-13 石家庄夏季别墅装修,铺地板的关键注意事项
2025-06-12 家里装修有必要装新风系统吗?
快速报价

taptapvip入口装饰 只为别墅而生

预约设计师