当前位置: 首页 > 热装楼盘 > taptap点点亚洲体育 > 天山国宾壹号193平装修户型解析
天山国宾壹号193平装修户型解析
来源:taptapvip入口装饰 浏览: 更新时间:2020-04-07 13:48:27
  项目地址:国宾一号

  户型面积:193平米

  风格介绍:欧式

  设计师: 何博


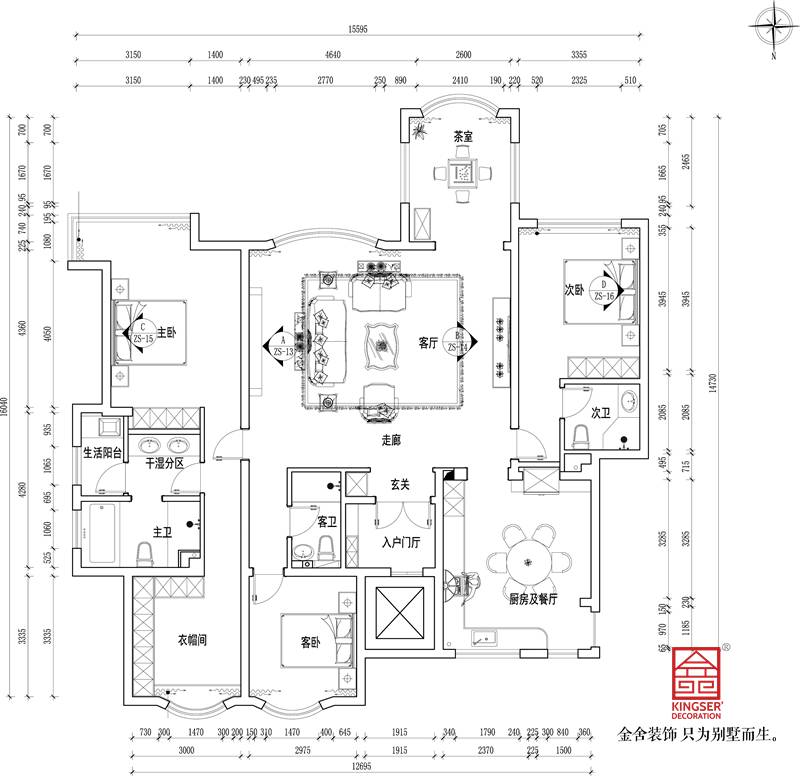
  墙体拆除解析:

  1、进入户门后右转,厨房餐厅区域由原来的独立空间合并为一个烹饪加用餐的空间,增强了人的互动性,也让空间变得开放、通透。

  2、主卧室将两个空间合二为一,变成卧室衣帽间及卫生间一体化,功能齐全,体现了主卧空间的舒适性。

  3、次卫生间的墙体统一向下挪,使淋浴等空间达到最大舒适化。

服务设计师

擅长风格:美式风格 轻奢风格

擅长户型:别墅 跃层

设计理念:设计因使用者而存在 以人为本 和谐自然

预约设计师

装修无忧 免费报价

taptap点点手机网页版

相关案例

天山国宾壹号145平米简约美式装修实景

风格:美式风格 户型:三居 面积:145㎡

天山国宾壹号188平米新中式风格装修实景

风格:中式风格 户型:四居 面积:188㎡

国宾壹号210平米中式风格装修实景图

风格:中式风格 户型:跃层 面积:210㎡

天山国宾壹号116平米北欧风格装修效果图

风格:欧式风格 户型:二居 面积:116㎡

家装资讯

2025-08-20 别墅厨房装修:避开这些坑,做饭更轻松​
2025-07-06 石家庄装修公司揭秘:法式风格吊顶的选择与装修要点
2025-06-27 石家庄别墅装修小课堂:欧式家具清洁保养全攻略
2025-06-17 石家庄室内装修:打造不压抑的高级意式风格
2025-06-13 石家庄夏季别墅装修,铺地板的关键注意事项
2025-06-12 家里装修有必要装新风系统吗?
快速报价

taptapvip入口装饰 只为别墅而生

预约设计师