石家庄
[切换]
集团
保定
唐山
鹦鹉螺
中国家装设计百强企业
咨询热线:400-999-8206
首页
taptap点点手机网页版
实景案例
taptap点点网服务网址
taptap点点链接
金舍装饰##taptap点点星际争霸2
taptap点点登录入口
taptap点点手机网页
taptap点点官方网址
热装楼盘
taptap点点
taptap点点登录APP
taptap点点亚洲体育
taptap点点官方网站app使用方法
五星服务
点点taptap官网app网址
私人订制
taptap点点官网登录入口
墅业精工
墅装瞬间
taptap点点官网
实景展示
明星人物
工程服务
软装配饰
装修问答
装修指南
家装攻略
装修选材
装修设计
家居装饰
taptapTCG彩票
品牌故事
taptapvip入口新闻
客户心声
加入taptapvip入口
快速报价
搜 索
当前位置:
首页
>
热装楼盘
>
taptap点点亚洲体育
> 融创中心217平米装修户型解析
融创中心217平米装修户型解析
来源:
taptapvip入口装饰
浏览:
次
更新时间:
2020-05-27 09:46:35
项目地址:融创中心
面积: 217平米
设计风格:港式风格
设计师:
王建辉
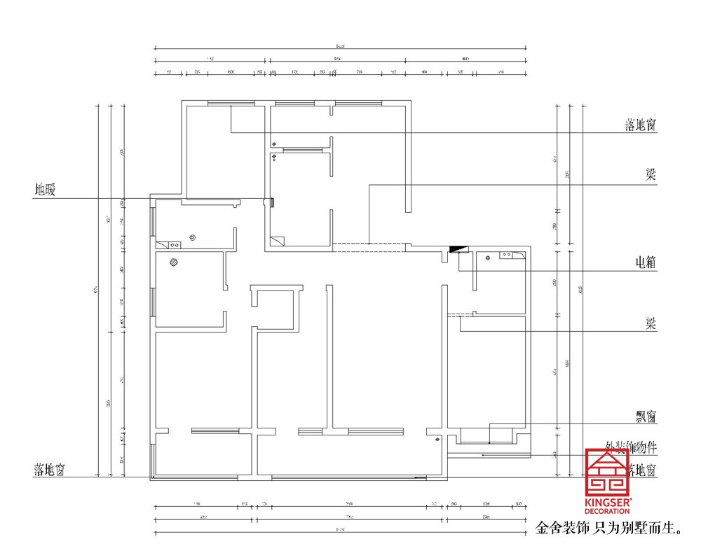
原始户型图
平面布局图
【户型优点】
①整个户型都很周正,入户到玄关有两米七的空间,视野宽敞。
②主卧功能全面,具备独立卫生间和独立衣帽间,以及独立阳台。
③厨房餐厅足够大,不必担心储物功能缺少的问题
【户型缺点及改进】
①衣帽间没有区分男女,解决办法:把主卧卫生间缩小,与次卧合成一个大卫生间。这样主卧的位置就变大,有了男衣帽间的位置。
②主卧和阳台的墙体都可拆,打开后空间变的更大了。
③餐厅和厨房虽大,但是没有大宅的风范,可以整个把厨房和餐厅都打开,做成围合式的,这样更有大宅的感觉
上一篇:融创中心180平米装修户型拆改说明
下一篇:荣盛华府178平米装修户型解析
服务设计师
擅长风格:
美式风格 中式风格
擅长户型:
别墅 跃层
设计理念:
创意与生活息息相关,灵感来自生活。
预约设计师
装修无忧 免费报价
立即获取报价
taptap点点手机网页版
相关案例
融创中心155平米轻奢风格装修效果图
风格:
轻奢风格
户型:
三居
面积:
155㎡
融创中心155平米现代风格装修效果案例
风格:
现代简约风格
户型:
三居
面积:
155㎡
融创中心180平米中式风格装修效果图
风格:
中式风格
户型:
四居
面积:
180㎡
融创中心217平中式风格装修设计效果图
风格:
中式风格
户型:
别墅
面积:
217㎡
家装资讯
2025-08-20
●
别墅厨房装修:避开这些坑,做饭更轻松
2025-07-06
●
石家庄装修公司揭秘:法式风格吊顶的选择与装修要点
2025-06-27
●
石家庄别墅装修小课堂:欧式家具清洁保养全攻略
2025-06-17
●
石家庄室内装修:打造不压抑的高级意式风格
2025-06-13
●
石家庄夏季别墅装修,铺地板的关键注意事项
2025-06-12
●
家里装修有必要装新风系统吗?
快速报价
taptapvip入口装饰 只为别墅而生
获取报价
预约设计师
预约设计师