当前位置: 首页 > 热装楼盘 > taptap点点亚洲体育 > 融创中心180平米装修户型拆改说明
融创中心180平米装修户型拆改说明
来源:taptapvip入口装饰 浏览: 更新时间:2020-05-26 10:43:29
  项目地点:融创中心

  面积:180平米

  设计师:王照东

原始户型图


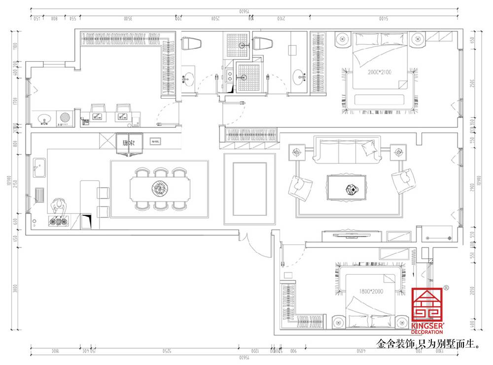
平面布局图

【户型优点】
①大三室,符合大宅的标准,户型通透
②整体户型通透,每个空间都很大,有独立的衣帽间
③厨房和餐厅储物功能大
 

【户型缺点及改进办法
①玄关到门口距离是2100㎝,视觉上看起来有点窄。解决办法:做一个嵌入式的玄关柜,看起来视线会宽阔些
②餐厅的墙垛占空间,可以打掉,把厨房做成开放式的,餐厅做围合式餐桌,会更有大宅的品味和感觉。


服务设计师

擅长风格:现代简约 轻奢风格

擅长户型:跃层 四居

设计理念:己所不欲,勿施于人

预约设计师

装修无忧 免费报价

taptap点点手机网页版

相关案例

融创中心155平米轻奢风格装修效果图

风格:轻奢风格 户型:三居 面积:155㎡

融创中心155平米现代风格装修效果案例

风格:现代简约风格 户型:三居 面积:155㎡

融创中心180平米中式风格装修效果图

风格:中式风格 户型:四居 面积:180㎡

融创中心217平中式风格装修设计效果图

风格:中式风格 户型:别墅 面积:217㎡

家装资讯

2025-08-20 别墅厨房装修:避开这些坑,做饭更轻松​
2025-07-06 石家庄装修公司揭秘:法式风格吊顶的选择与装修要点
2025-06-27 石家庄别墅装修小课堂:欧式家具清洁保养全攻略
2025-06-17 石家庄室内装修:打造不压抑的高级意式风格
2025-06-13 石家庄夏季别墅装修,铺地板的关键注意事项
2025-06-12 家里装修有必要装新风系统吗?
快速报价

taptapvip入口装饰 只为别墅而生

预约设计师