项目名称:保利西山林语二期
项目地址:石家庄鹿泉
项目面积:170㎡
设计单位:taptapvip入口别墅装饰总部店
首席设计师:武林慧
设计团队:孙俊尧 冯雨奇
软装陈设:刘潇文

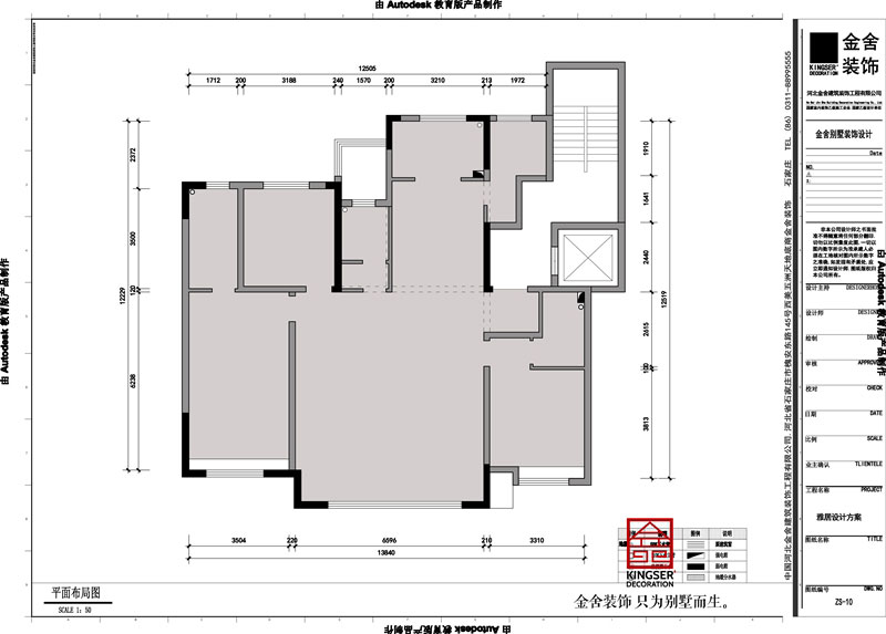
原始户型图

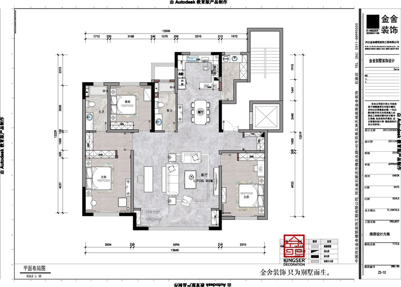
平面布置图
户型解析:入户空间窄小 利用简介线条和灯光勾勒出空间氛围感
客厅空间拆除墙体,精致的家具陈设雕塑感极强,仿佛动态与静态可随时转换。暖棕、素灰,亮白互相穿插相融,沙发、茶几、边椅圆润边角线敦厚,共同营造出一方自在闲适。空间由看似随性却富有条理性的线面铺开,丰富的自然采光消融现代材质的冰冷。电视墙面转换为往上延伸的悬空视觉效果,弱化原本较低的层高局限。空间形态达到轻柔平展,多元崭新的面貌被逐一唤醒。
厨房空间利用不足,拆除原有墙体。改造成敞开式厨房,连接一侧边岛,增加餐厅及厨房的互动性,也为原有利用不足的厨房增加小电器的台面利用。
主卧室拆除原有飘窗,增加空间开阔度 。跟主卫相连之处隔出L型衣帽间,遮挡卫生间门的同时合理利用两侧收纳。