帝王国际193平米中式风格户型解析
来源:taptapvip入口装饰
浏览:次
更新时间:2021-11-18 09:09:54
项目地址:帝王国际
装修面积:193平米
装修风格:中式风格
帝王国际193平米原始户型图
户型解析
优点分析:
1动线较合理,没有浪费空间
2.公共空间大,仪式感强
3.整体户型空间方正
4.主卧室有单独的衣帽间,整体储物空间较多
缺点
1.客厅没有阳台,空间感较差
2.主次卧室空间刀把户型
3.厨房空间收纳相对较小,不能满足电器的使用
帝王国际193平米墙体拆除图
帝王国际193平米新建墙体图

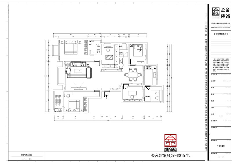
帝王国际193平米平面布置图
拆改方法:
1.把户型东北角储物间划给厨房使用
2.刀把户型空间通过吊顶来划分空间结构
3.通过墙体新建利用平面来收纳使用空间