当前位置: 首页 > taptap点点手机网页版 > taptap点点网服务网址 > 融创中心155㎡现代风格taptap官方下载入口安卓
融创中心155㎡现代风格taptap官方下载入口安卓
来源:taptapvip入口装饰 浏览: 更新时间:2021-07-12 10:03:32

融创中心

楼盘名称

155平

装修面积

现代简约风格

装修风格

师红灿

设计师

设计理念

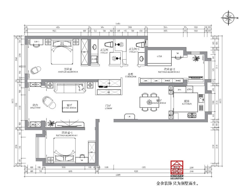
设计说明:此案为石家庄taptapvip入口装饰taptap官方下载入口安卓,融创中心8号地155户型,此户型是标准南北通透三室户型。 业主是夫妻带两个小男孩,所以每个卧室都利用上,风格定义为港式轻奢。本案用金色不锈钢条和木色木纹搭配,配以灰色墙漆,既简洁大方又略显小资轻奢的感觉。

项目地址:融创中心
装修面积:155平米
装修风格:现代风格
设计师:师红灿

融创中心155户型施工图
融创中心155㎡现代风格装修效果图
融创中心155㎡现代风格装修效果图
融创中心155㎡现代风格装修效果图
融创中心155㎡现代风格装修效果图
融创中心155㎡现代风格装修效果图
融创中心155㎡现代风格装修效果图
融创中心155㎡现代风格装修效果图
设计说明:此案为石家庄taptapvip入口装饰taptap官方下载入口安卓,融创中心8号地155户型,此户型是标准南北通透三室户型。
业主是夫妻带两个小男孩,所以每个卧室都利用上,风格定义为港式轻奢。本案用金色不锈钢条和木色木纹搭配,配以灰色墙漆,既简洁大方又略显小资轻奢的感觉。

本案设计师

擅长风格:新古典风格 港式风格

擅长户型:三居 四居

设计理念:把家给我,给您舒适七星级品质家

预约设计师

装修无忧 免费报价

taptap点点网服务网址

相关案例

肯彤名邸180平米现代简约taptap官方下载入口安卓

风格:现代简约风格 户型:平层 面积:180㎡

瀚林甲第130平米现代简约taptap官方下载入口安卓

风格:现代简约风格 户型:平层 面积:130㎡

东胜天御167平米现代轻奢taptap官方下载入口安卓

风格:轻奢风格 户型:平层 面积:167㎡

西山林语别墅360平米极简风格taptap官方下载入口安卓

风格:现代简约风格 户型:别墅 面积:360㎡

家装资讯

2025-08-20 别墅厨房装修:避开这些坑,做饭更轻松​
2025-07-06 石家庄装修公司揭秘:法式风格吊顶的选择与装修要点
2025-06-27 石家庄别墅装修小课堂:欧式家具清洁保养全攻略
2025-06-17 石家庄室内装修:打造不压抑的高级意式风格
2025-06-13 石家庄夏季别墅装修,铺地板的关键注意事项
2025-06-12 家里装修有必要装新风系统吗?
快速报价

taptapvip入口装饰 只为别墅而生

预约设计师