【项目名称】:东南智汇城
【项目面积】:191平米
【设计风格】:新中式风格
【设计主创】:杨佼
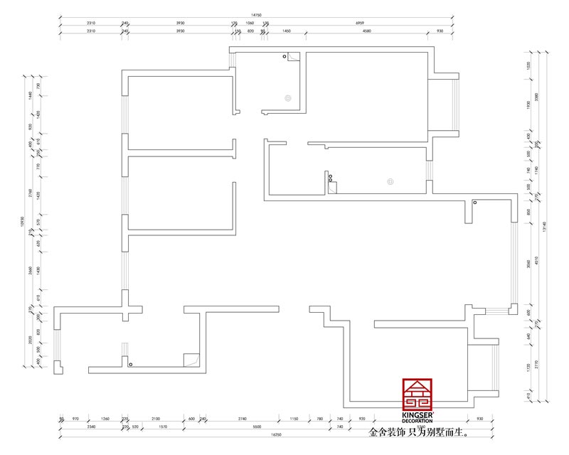
户型解析:
原户型中进门门厅空间过于浪费,且进门缺少入户鞋帽柜,将门厅部分空间隔出新建入户衣帽间,在门厅不失大气的前提下最大化利用空间,并解决了进门后衣物无法收纳的问题。
原户型中客卫门位于走廊尽头,风水中其意:是非口舌,心口堵。在户型允许的情况下,牺牲部分主卧走廊的空间之后,将原客卫门南移,与走廊错开。
原户型中厨房空间过小,不能满足日常需要,在空间允许的情况下,将厨房间北阳台墙体拆除后,厨房扩大至原先的一倍,使用起来更为舒适方便。
原户型中南阳台东侧为空调外机位,拆除后增加室内空间,成为晾晒区,解放阳台主空间,让阳台成为真正的休闲阳台。
