当前位置: 首页 > 热装楼盘 > taptap点点亚洲体育 > 保利拉菲公馆149平户型解析
保利拉菲公馆149平户型解析
来源:taptapvip入口装饰 浏览: 更新时间:2019-09-12 10:16:33
  

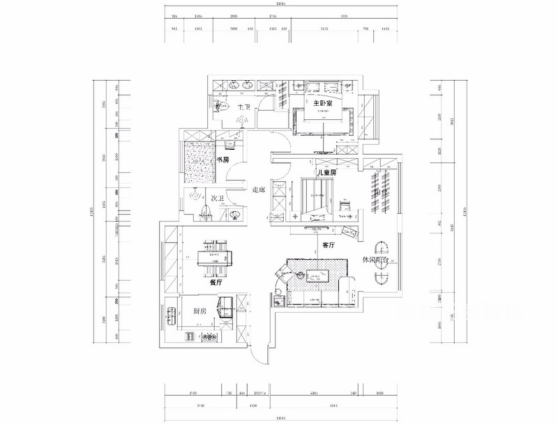
  1   入户门厅做了一组储物柜可以放置现季过季鞋的收纳,简单的挂放,换鞋凳,雨具等等

  2   餐厅面积有点小,改动餐厅到阳台之前的墙动,这样使餐厅在功能上和空间上都有所提升。

  3   走廊和儿童房的双面收纳使客卫生间的收纳功能有所提升。

原始户型图


平面布局图


服务设计师

擅长风格:美式风格 中式风格

擅长户型:别墅 四居

设计理念:创意是设计的灵魂。 设计灵感,是出自于生活但又高于生活的一种产物,并且追求艺术与技术的完美结合。

预约设计师

装修无忧 免费报价

taptap点点手机网页版

相关案例

保利拉菲公馆170平米美式风格装修实景

风格:美式风格 户型:四居 面积:170㎡

保利拉菲公馆150平米新中式风格装修实景

风格:中式风格 户型:三居 面积:150㎡

保利拉菲公馆172㎡混搭装修实景

风格:混搭风格 户型:三居 面积:172㎡

保利拉菲公馆197平现代轻奢装修效果图

风格:轻奢风格 户型:四居 面积:197㎡

家装资讯

2025-08-20 别墅厨房装修:避开这些坑,做饭更轻松​
2025-07-06 石家庄装修公司揭秘:法式风格吊顶的选择与装修要点
2025-06-27 石家庄别墅装修小课堂:欧式家具清洁保养全攻略
2025-06-17 石家庄室内装修:打造不压抑的高级意式风格
2025-06-13 石家庄夏季别墅装修,铺地板的关键注意事项
2025-06-12 家里装修有必要装新风系统吗?
快速报价

taptapvip入口装饰 只为别墅而生

预约设计师