当前位置: 首页 > 热装楼盘 > taptap点点亚洲体育 > 天山国宾壹号116平米装修户型解析
天山国宾壹号116平米装修户型解析
来源:taptapvip入口装饰 浏览: 更新时间:2020-12-09 14:16:18

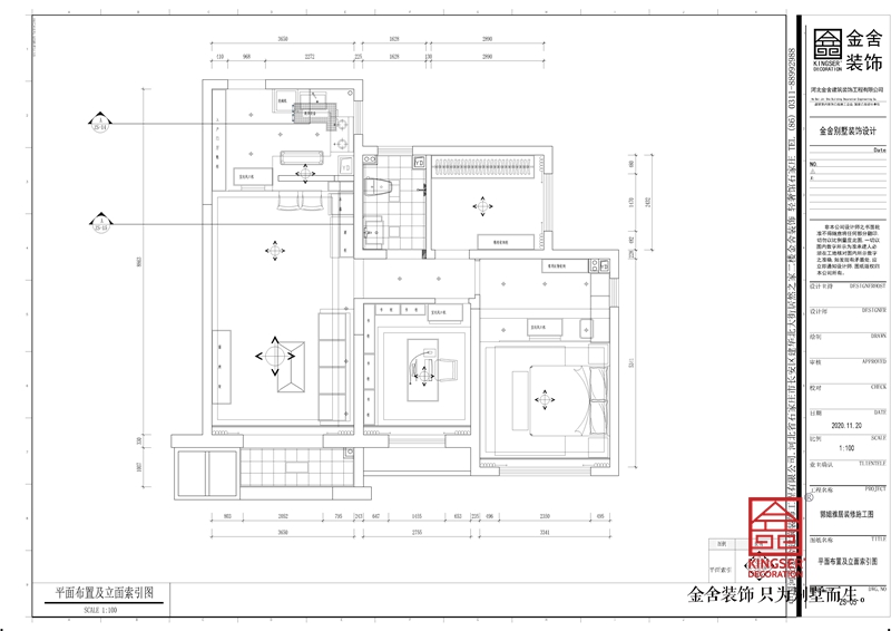
    ​楼盘:天山国宾壹号

  面积:116㎡

  风格:北欧

  主案设计师:任立峰



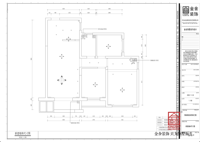
   户型解析:此案户型的痛点在于狭小的入户门厅,通风采光较差的厨房,空间尺寸较小的餐厅,以及尺寸过于苛刻的干湿分离卫生间,淋浴空间非常差。

  拆改方法:为了解决以上的问题,拆掉厨房西墙和南墙分水器以上的墙体,使入户门厅和厨房的壁垒完全消失,并且餐厅和厨房合并,弥补厨房操作台面的不足,打造现代时尚中西合璧的开放式厨房,给人非常明显的空间开阔感。卫生间干湿分区取消,可以完美的解决卫生间淋浴区的尴尬问题。

服务设计师

擅长风格:

擅长户型:

设计理念:

预约设计师

装修无忧 免费报价

taptap点点手机网页版

相关案例

天山国宾壹号145平米简约美式装修实景

风格:美式风格 户型:三居 面积:145㎡

天山国宾壹号188平米新中式风格装修实景

风格:中式风格 户型:四居 面积:188㎡

国宾壹号210平米中式风格装修实景图

风格:中式风格 户型:跃层 面积:210㎡

天山国宾壹号116平米北欧风格装修效果图

风格:欧式风格 户型:二居 面积:116㎡

家装资讯

2025-08-20 别墅厨房装修:避开这些坑,做饭更轻松​
2025-07-06 石家庄装修公司揭秘:法式风格吊顶的选择与装修要点
2025-06-27 石家庄别墅装修小课堂:欧式家具清洁保养全攻略
2025-06-17 石家庄室内装修:打造不压抑的高级意式风格
2025-06-13 石家庄夏季别墅装修,铺地板的关键注意事项
2025-06-12 家里装修有必要装新风系统吗?
快速报价

taptapvip入口装饰 只为别墅而生

预约设计师