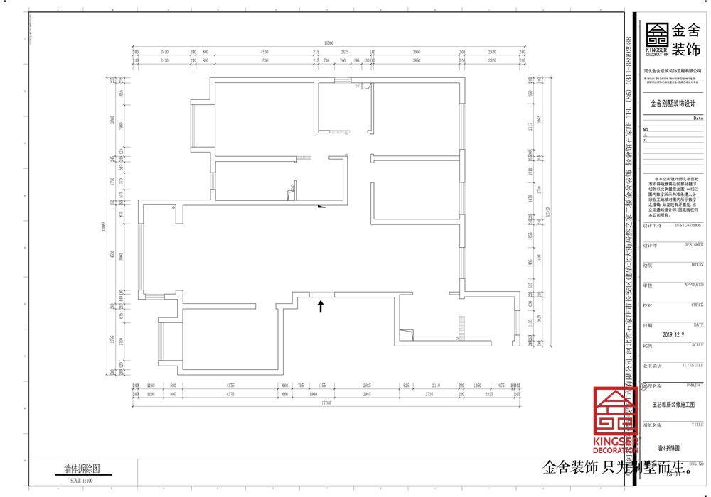
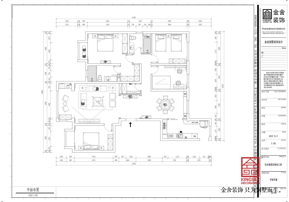
楼盘:
东南智汇城
面积: 191平米
装修风格:美式风格
设计师:何瑞根

户型解析:
原户型中进门门厅空间过于浪费,且进门缺少入户鞋帽柜,将门厅部分空间隔出建入户衣帽间,在门厅不失大气的前提下最大化利用空间,并解决了进门后衣物无法收纳的问题。
原户型中客卫门位于走廊尽头,风水中其意:是非口舌,心口堵。在户型允许的情况下,牺牲部分主卧走廊的空间之后,将原客卫门左移,与走廊错开。
原户型中厨房空间过小,不能满足日常需要,在空间允许的情况下,将厨房间门窗墙体拆除后,厨房扩大至原先的一倍,使用起来更为舒适方便。