面积:365平米
设计师:杜海国


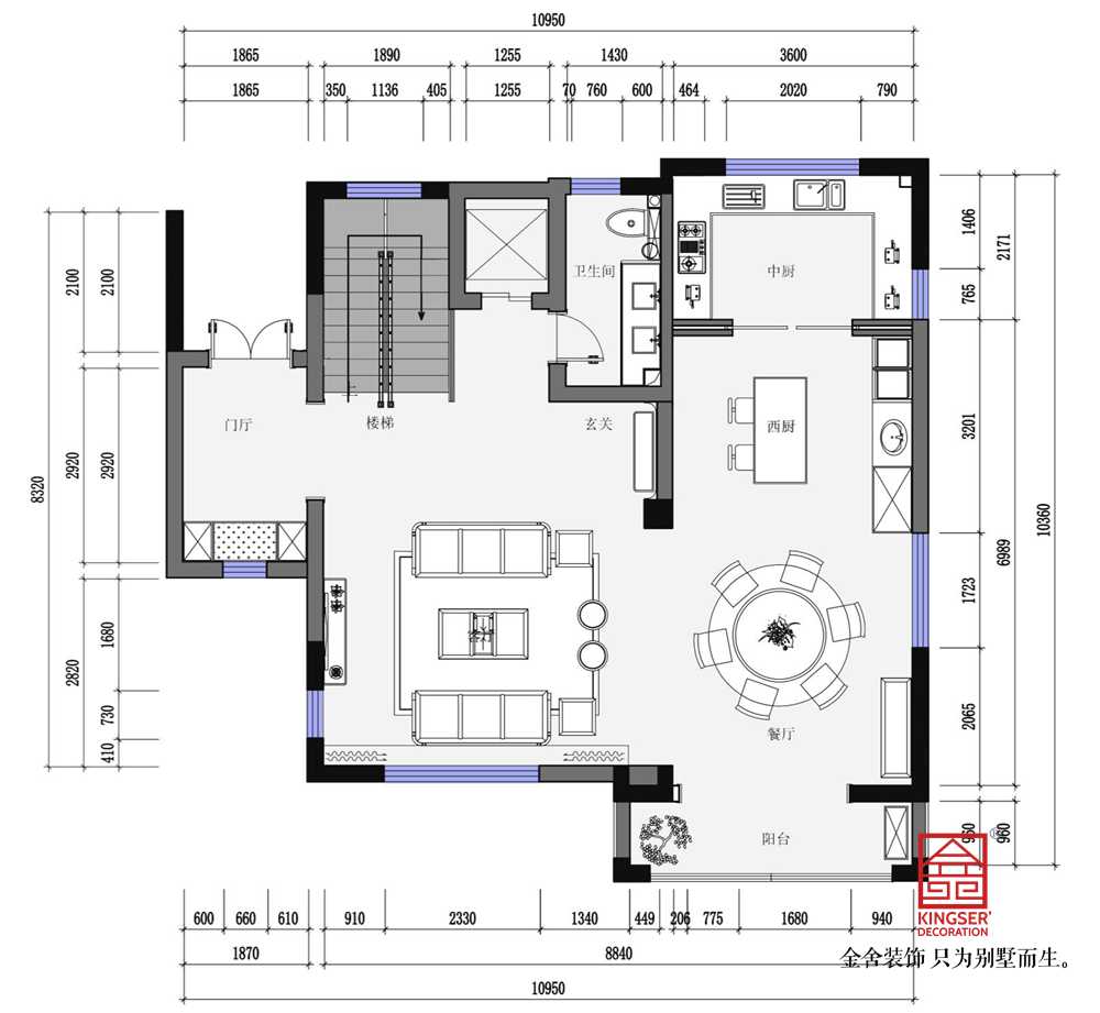
① 户型方正、南北通透、三面采光,正如清风婉转,阳光留恋。
② 功能划分明确。入户玄关,客厅、厨房与餐厅与观景阳台相连,空间光线明媚,清风徐徐。
缺点:
③ 客厅空间较小,占位比较尴尬。
④ 剩余空间窄长
改造:
① 将窄长空间合理利用划分为中西厨。厨房餐厅南北相连,就餐、使用便利。就餐同时可以观景。
② 将玄关走廊,客厅与餐厅相连弱化空间划分,增大客厅感官上的空间扩大化。


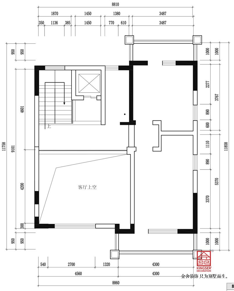
② 功能划分明确,两个卧室自带阳台,增加生活景致。
缺点:
③ 阳台窄小,卧室空间分布不均
④ 卧室阳台窗窄小。
改造:
① 打通了卧室阳台门窗,改为推拉门,增加了卧室的采光度
② 阳台进行绿植美化,可作为私人的绿色空间增添喜欢的绿植。


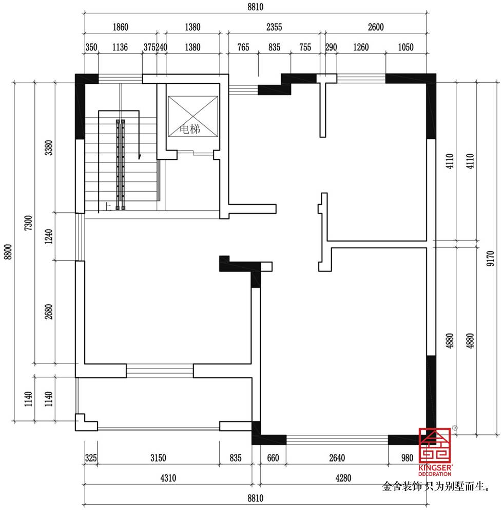
三楼户型优点:
① 南北通透,采光通透,通风良好
② 相较与二楼有了一个公共空间,同时连接阳台。
缺点:
③ 功能区域划分不明确。
④ 空间部分浪费
改造:
① 豪华套件,区域划分明确,动静分离,衣帽间与卫生间分离。
② 衣帽间划分为男士衣帽间与女士衣帽间。增加私密性,


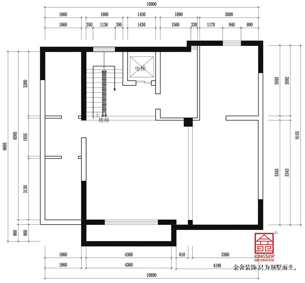
缺点:
② 采光差,通风局部差。
改造:
① 合理利用采光通风好的进行设为保姆房.
② 利用采光不足增加影音室。合理利用采光与通风将天井附近区域划分为茶室。