当前位置: 首页 > 热装楼盘 > taptap点点亚洲体育 > 西山林语二期260平米装修户型解析
西山林语二期260平米装修户型解析
来源:taptapvip入口装饰 浏览: 更新时间:2020-05-16 14:26:30
       项目地点:西山林语二期

  面积:260

  设计师:冯阔






 

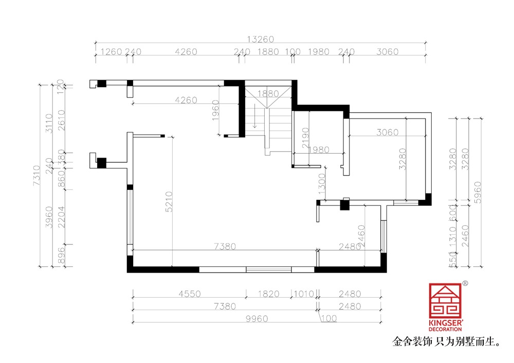
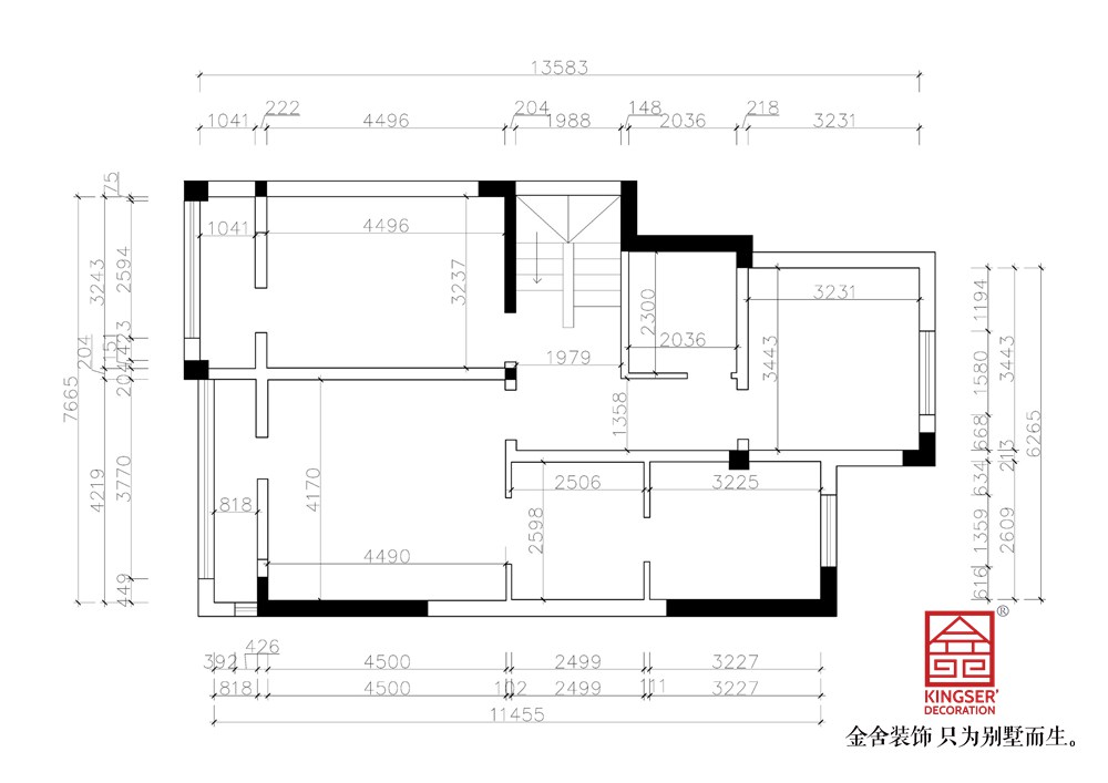
  户型优缺点:

  户型规划相对合理。全明设计,南北通透,采光充分,又有利于室内空气流通。厨房与餐厅南北相连,就餐、使用更加便利。门厅狭长,面积不合理。

  拆改方法:

  划分原始门厅为两个独立空间,一个为独立门厅,另一个为储物衣帽间。

服务设计师

擅长风格:

擅长户型:

设计理念:

预约设计师

装修无忧 免费报价

taptap点点手机网页版

相关案例

西山林语303平米中式风格装修效果图

风格:中式风格 户型:别墅 面积:303㎡

西山林语300平米欧式风格装修效果图

风格:欧式风格 户型:别墅 面积:300㎡

西山林语303平米美式风格装修效果图

风格:美式风格 户型:别墅 面积:303㎡

家装资讯

2025-08-20 别墅厨房装修:避开这些坑,做饭更轻松​
2025-07-06 石家庄装修公司揭秘:法式风格吊顶的选择与装修要点
2025-06-27 石家庄别墅装修小课堂:欧式家具清洁保养全攻略
2025-06-17 石家庄室内装修:打造不压抑的高级意式风格
2025-06-13 石家庄夏季别墅装修,铺地板的关键注意事项
2025-06-12 家里装修有必要装新风系统吗?
快速报价

taptapvip入口装饰 只为别墅而生

预约设计师