石家庄
[切换]
集团
保定
唐山
鹦鹉螺
中国家装设计百强企业
咨询热线:400-999-8206
首页
taptap点点手机网页版
实景案例
taptap点点网服务网址
taptap点点链接
金舍装饰##taptap点点星际争霸2
taptap点点登录入口
taptap点点手机网页
taptap点点官方网址
热装楼盘
taptap点点
taptap点点登录APP
taptap点点亚洲体育
taptap点点官方网站app使用方法
五星服务
点点taptap官网app网址
私人订制
taptap点点官网登录入口
墅业精工
墅装瞬间
taptap点点官网
实景展示
明星人物
工程服务
软装配饰
装修问答
装修指南
家装攻略
装修选材
装修设计
家居装饰
taptapTCG彩票
品牌故事
taptapvip入口新闻
客户心声
加入taptapvip入口
快速报价
搜 索
当前位置:
首页
>
热装楼盘
>
taptap点点亚洲体育
> 龙湖天宸原著200平户型解析
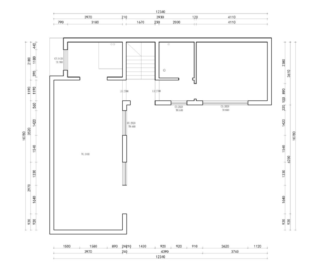
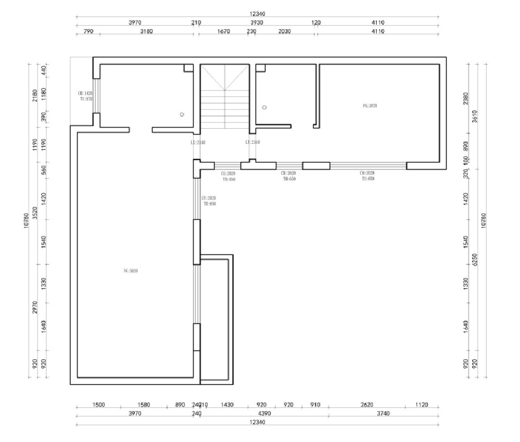
龙湖天宸原著200平户型解析
来源:
taptapvip入口装饰
浏览:
次
更新时间:
2020-04-16 15:15:35
整体户型方正,活动区域开阔,居住舒适度高;全明通透户型,居住舒适度较高,整个空间采光充足,利于后期居住;居室布局合理,通风良好,动静分离,兼顾到了卧室和卫生间的私密性;各个功能区的尺寸比例规范,布局合理,能很好地满足日常功能需求,整体空间开阔,采光充足,居住舒适度好;
上一篇:金悦府220平米新中式装修图
下一篇:德贤公馆160平米装修户型解析
服务设计师
擅长风格:
美式风格 中式风格
擅长户型:
别墅 跃层
设计理念:
和谐的细节之美。
预约设计师
装修无忧 免费报价
立即获取报价
taptap点点手机网页版
相关案例
龙湖天宸原著200平中式装修效果图
风格:
中式风格
户型:
别墅
面积:
200㎡
龙湖天宸原著200平米新中式装修效果图
风格:
中式风格
户型:
别墅
面积:
200㎡
龙湖天宸原著174㎡新中式风格装修实景图
风格:
中式风格
户型:
三居
面积:
174㎡
家装资讯
2025-08-20
●
别墅厨房装修:避开这些坑,做饭更轻松
2025-07-06
●
石家庄装修公司揭秘:法式风格吊顶的选择与装修要点
2025-06-27
●
石家庄别墅装修小课堂:欧式家具清洁保养全攻略
2025-06-17
●
石家庄室内装修:打造不压抑的高级意式风格
2025-06-13
●
石家庄夏季别墅装修,铺地板的关键注意事项
2025-06-12
●
家里装修有必要装新风系统吗?
快速报价
taptapvip入口装饰 只为别墅而生
获取报价
预约设计师
预约设计师