石家庄
[切换]
集团
保定
唐山
鹦鹉螺
中国家装设计百强企业
咨询热线:400-999-8206
首页
taptap点点手机网页版
实景案例
taptap点点网服务网址
taptap点点链接
金舍装饰##taptap点点星际争霸2
taptap点点登录入口
taptap点点手机网页
taptap点点官方网址
热装楼盘
taptap点点
taptap点点登录APP
taptap点点亚洲体育
taptap点点官方网站app使用方法
五星服务
点点taptap官网app网址
私人订制
taptap点点官网登录入口
墅业精工
墅装瞬间
taptap点点官网
实景展示
明星人物
工程服务
软装配饰
装修问答
装修指南
家装攻略
装修选材
装修设计
家居装饰
taptapTCG彩票
品牌故事
taptapvip入口新闻
客户心声
加入taptapvip入口
快速报价
搜 索
当前位置:
首页
>
热装楼盘
>
taptap点点亚洲体育
> 林荫大院206平米装修户型分析
林荫大院206平米装修户型分析
来源:
taptapvip入口装饰
浏览:
次
更新时间:
2019-08-23 16:49:54
【项目名称】:林荫大院
【项目面积】:206㎡
【设计风格】:简欧风格
【主案设计】:卢娜
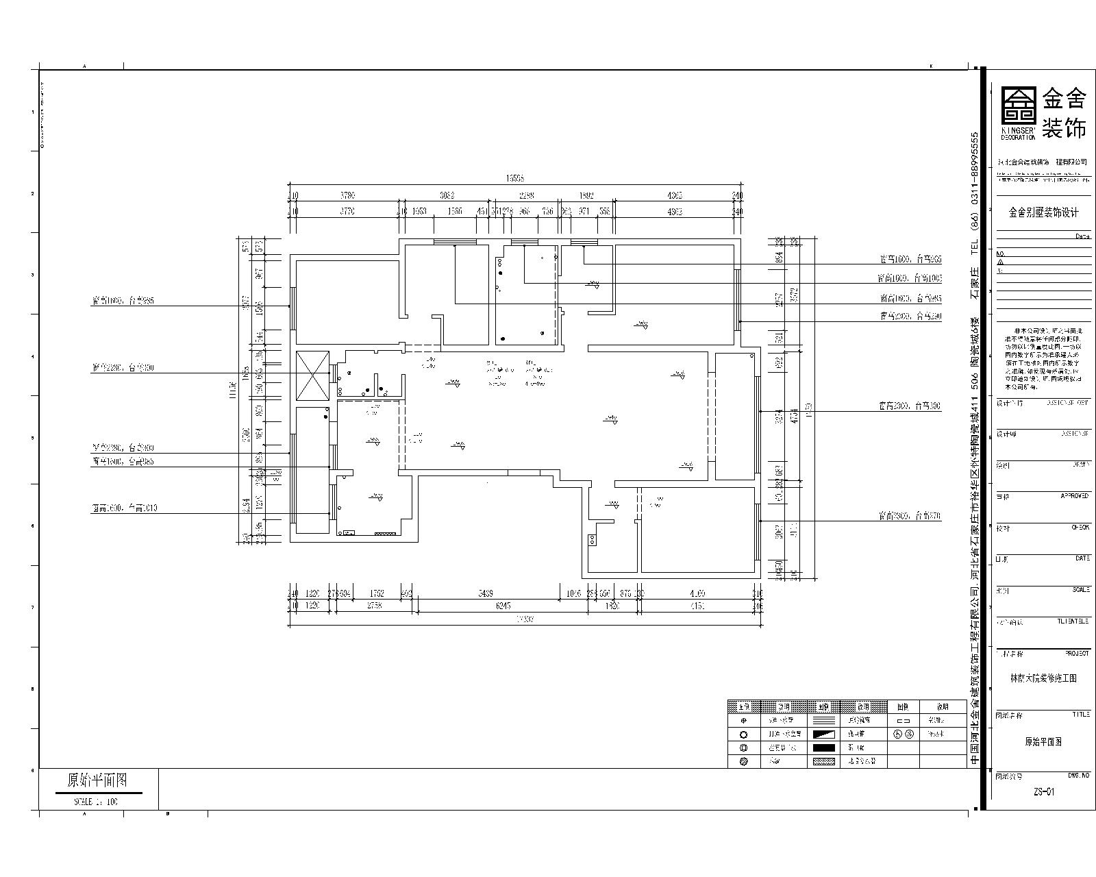
原始平面图
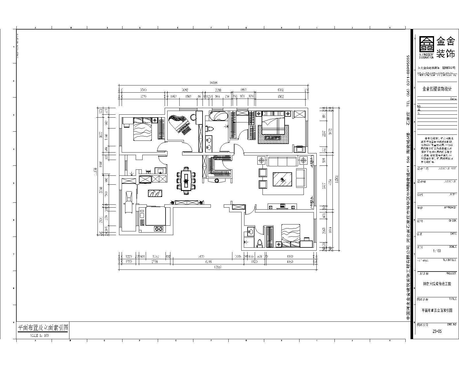
平面布局图
户型缺点分析:
1现有户型入户没有玄关位置,餐厅空间较大。
2,客厅空间较小
拆解后分析:
1客餐厅隔出一个衣帽间,增大了储物空间,同时增加的玄关位置,入户干净方正
2将客厅阳台的隔墙砸掉,扩大了客厅的空间
3主卧的空间较大,隔出一个生活阳台用来洗衣晾晒
4缩小主卫的空间,增大主卧衣帽间的空间,让空间合理利用.
上一篇:诠释独特设计思维,荣盛华府185㎡深度剖析
下一篇:荣盛华府215平米装修户型分析
服务设计师
擅长风格:
美式风格 轻奢风格
擅长户型:
跃层 四居
设计理念:
注重生活,注重细节,创造人居合一的高品质家居环境
预约设计师
装修无忧 免费报价
立即获取报价
taptap点点手机网页版
相关案例
林荫大院260平米港式风格装修实景
风格:
港式风格
户型:
别墅
面积:
260㎡
林荫大院206平米简欧风格装修效果图
风格:
欧式风格
户型:
四居
面积:
206㎡
林荫大院137平米现代简约装修效果图
风格:
现代简约风格
户型:
三居
面积:
137㎡
林荫大院260平米轻奢风格装修效果图
风格:
轻奢风格
户型:
其他
面积:
260㎡
家装资讯
2025-08-20
●
别墅厨房装修:避开这些坑,做饭更轻松
2025-07-06
●
石家庄装修公司揭秘:法式风格吊顶的选择与装修要点
2025-06-27
●
石家庄别墅装修小课堂:欧式家具清洁保养全攻略
2025-06-17
●
石家庄室内装修:打造不压抑的高级意式风格
2025-06-13
●
石家庄夏季别墅装修,铺地板的关键注意事项
2025-06-12
●
家里装修有必要装新风系统吗?
快速报价
taptapvip入口装饰 只为别墅而生
获取报价
预约设计师
预约设计师