石家庄
[切换]
集团
保定
唐山
鹦鹉螺
中国家装设计百强企业
咨询热线:400-999-8206
首页
taptap点点手机网页版
实景案例
taptap点点网服务网址
taptap点点链接
金舍装饰##taptap点点星际争霸2
taptap点点登录入口
taptap点点手机网页
taptap点点官方网址
热装楼盘
taptap点点
taptap点点登录APP
taptap点点亚洲体育
taptap点点官方网站app使用方法
五星服务
点点taptap官网app网址
私人订制
taptap点点官网登录入口
墅业精工
墅装瞬间
taptap点点官网
实景展示
明星人物
工程服务
软装配饰
装修问答
装修指南
家装攻略
装修选材
装修设计
家居装饰
taptapTCG彩票
品牌故事
taptapvip入口新闻
客户心声
加入taptapvip入口
快速报价
搜 索
当前位置:
首页
>
热装楼盘
>
taptap点点亚洲体育
> 龙湖天辰原著一字型合院别墅户型分析
龙湖天辰原著一字型合院别墅户型分析
来源:
taptapvip入口装饰
浏览:
次
更新时间:
2019-10-10 15:45:03
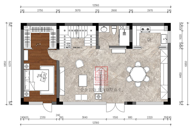
原始户型图
平面布局图
户型解析:
1 户型很方正,整个空间全明通透,采光良好。
2 楼梯宽度、踏步高度不合理。拆改楼梯空间,改变楼梯方向跟卫生间门方向
3 没有独立洗衣房
上一篇:融创中心180平米装修户型分析
下一篇:东南智汇城94平米装修户型分析
服务设计师
擅长风格:
现代简约 轻奢风格
擅长户型:
跃层 四居
设计理念:
己所不欲,勿施于人
预约设计师
装修无忧 免费报价
立即获取报价
taptap点点手机网页版
相关案例
龙湖天辰原著200平米新中式风格taptap官方下载入口安卓
风格:
中式风格
户型:
别墅
面积:
200㎡
龙湖天宸原著210平米新中式风格装修效果图
风格:
中式风格
户型:
别墅
面积:
210㎡
龙湖天辰原著200平米现代简约风格装修效果图
风格:
现代简约风格
户型:
别墅
面积:
200㎡
家装资讯
2025-08-20
●
别墅厨房装修:避开这些坑,做饭更轻松
2025-07-06
●
石家庄装修公司揭秘:法式风格吊顶的选择与装修要点
2025-06-27
●
石家庄别墅装修小课堂:欧式家具清洁保养全攻略
2025-06-17
●
石家庄室内装修:打造不压抑的高级意式风格
2025-06-13
●
石家庄夏季别墅装修,铺地板的关键注意事项
2025-06-12
●
家里装修有必要装新风系统吗?
快速报价
taptapvip入口装饰 只为别墅而生
获取报价
预约设计师
预约设计师