石家庄
[切换]
集团
保定
唐山
鹦鹉螺
中国家装设计百强企业
咨询热线:400-999-8206
首页
taptap点点手机网页版
实景案例
taptap点点网服务网址
taptap点点链接
金舍装饰##taptap点点星际争霸2
taptap点点登录入口
taptap点点手机网页
taptap点点官方网址
热装楼盘
taptap点点
taptap点点登录APP
taptap点点亚洲体育
taptap点点官方网站app使用方法
五星服务
点点taptap官网app网址
私人订制
taptap点点官网登录入口
墅业精工
墅装瞬间
taptap点点官网
实景展示
明星人物
工程服务
软装配饰
装修问答
装修指南
家装攻略
装修选材
装修设计
家居装饰
taptapTCG彩票
品牌故事
taptapvip入口新闻
客户心声
加入taptapvip入口
快速报价
搜 索
当前位置:
首页
>
热装楼盘
>
taptap点点亚洲体育
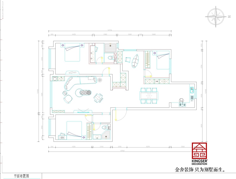
> 融创臻园壹号170平米户型解析
融创臻园壹号170平米户型解析
来源:
taptapvip入口装饰
浏览:
次
更新时间:
2022-10-18 09:53:27
项目地址:融创臻园壹号
装修面积:170平米
装修风格:港式轻奢风格
设计师:常海萱
户型优点:整体空间比较方正,南北通透。
户型缺点:厨房比较小,收纳功能较少,餐厅开间不是大,没有餐边柜的位置。
拆改方案第一解决餐厅较小问题,把西厨嵌进客房增加餐厅西厨功能,释放厨房空间。第二玄关作为内嵌式玄关增加入户进深感。客厅电视墙做隐形门,整体视觉设计延长,主卧室增加双盆设计,大气实用。
上一篇:荣盛华府185平四室两卫户型解析
下一篇:辛集时代华府260㎡顶跃户型装修设计解析
服务设计师
擅长风格:
中式风格 港式风格 现代简约
擅长户型:
三居 四居
设计理念:
没有经过设计演绎的家不值得度过。
预约设计师
装修无忧 免费报价
立即获取报价
taptap点点手机网页版
相关案例
融创臻园壹号170平米港式轻奢风格装修设计
风格:
轻奢风格
户型:
平层
面积:
170㎡
家装资讯
2025-08-20
●
别墅厨房装修:避开这些坑,做饭更轻松
2025-07-06
●
石家庄装修公司揭秘:法式风格吊顶的选择与装修要点
2025-06-27
●
石家庄别墅装修小课堂:欧式家具清洁保养全攻略
2025-06-17
●
石家庄室内装修:打造不压抑的高级意式风格
2025-06-13
●
石家庄夏季别墅装修,铺地板的关键注意事项
2025-06-12
●
家里装修有必要装新风系统吗?
快速报价
taptapvip入口装饰 只为别墅而生
获取报价
预约设计师
预约设计师