石家庄
[切换]
集团
保定
唐山
鹦鹉螺
中国家装设计百强企业
咨询热线:400-999-8206
首页
taptap点点手机网页版
实景案例
taptap点点网服务网址
taptap点点链接
金舍装饰##taptap点点星际争霸2
taptap点点登录入口
taptap点点手机网页
taptap点点官方网址
热装楼盘
taptap点点
taptap点点登录APP
taptap点点亚洲体育
taptap点点官方网站app使用方法
五星服务
点点taptap官网app网址
私人订制
taptap点点官网登录入口
墅业精工
墅装瞬间
taptap点点官网
实景展示
明星人物
工程服务
软装配饰
装修问答
装修指南
家装攻略
装修选材
装修设计
家居装饰
taptapTCG彩票
品牌故事
taptapvip入口新闻
客户心声
加入taptapvip入口
快速报价
搜 索
当前位置:
首页
>
热装楼盘
>
taptap点点亚洲体育
> 德贤华府157平三室一厅户型解析
德贤华府157平三室一厅户型解析
来源:
taptapvip入口装饰
浏览:
次
更新时间:
2022-09-24 10:40:51
项目地址:德贤华府
装修面积:157平米
装修风格:现代轻法风格
设计师:闫振明
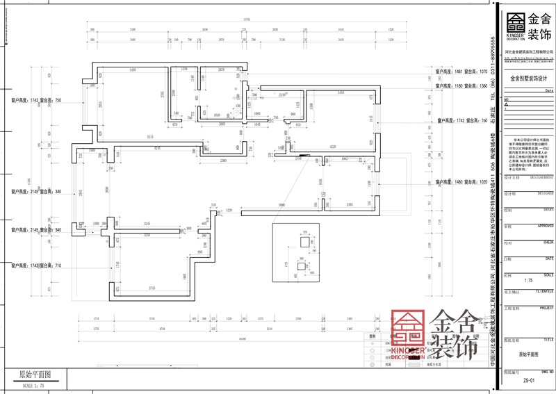
德贤华府157平三室一厅户型原始平面图
德贤华府157平三室一厅户型拆除图
德贤华府157平三室一厅户型新建图
德贤华府157平三室一厅户型平面布局图
户型解析:
本案为
石家庄装修公司
--德贤华府157平三室一厅户型解析,原户型中玄关位置没有入户衣帽鞋柜,利用次卧位置的空间隔断出一个小型的衣帽间,方便出入物品的储藏同时也改变了次卧的开门位置,使电视墙更完整。
原户型中客卫的门在走廊的尽头,在家居风水方面是十分不好的。所以利用走廊改变门口的方向,拆掉走廊与餐厅的隔墙做收纳洗漱用品的储藏空间。
原户型中卧室过于小气且衣帽间使用率不高,拆掉衣帽间墙体将卧室与衣帽间融合,使主卧的居住空间更加舒适
上一篇:荣盛御府415平米欧式风格别墅装修户型解析
下一篇:国宾壹号287平新中式风格跃层户型解析
服务设计师
擅长风格:
美式风格 中式风格
擅长户型:
三居 四居
设计理念:
将设计融于人性,将家居带入悠闲自在的情境。
预约设计师
装修无忧 免费报价
立即获取报价
taptap点点手机网页版
相关案例
德贤华府157平现代轻法风格taptap官方下载入口安卓
风格:
现代简约风格
户型:
三居
面积:
157㎡
德贤华府190㎡现代风格装修设计
风格:
现代简约风格
户型:
三居
面积:
190㎡
家装资讯
2025-08-20
●
别墅厨房装修:避开这些坑,做饭更轻松
2025-07-06
●
石家庄装修公司揭秘:法式风格吊顶的选择与装修要点
2025-06-27
●
石家庄别墅装修小课堂:欧式家具清洁保养全攻略
2025-06-17
●
石家庄室内装修:打造不压抑的高级意式风格
2025-06-13
●
石家庄夏季别墅装修,铺地板的关键注意事项
2025-06-12
●
家里装修有必要装新风系统吗?
快速报价
taptapvip入口装饰 只为别墅而生
获取报价
预约设计师
预约设计师