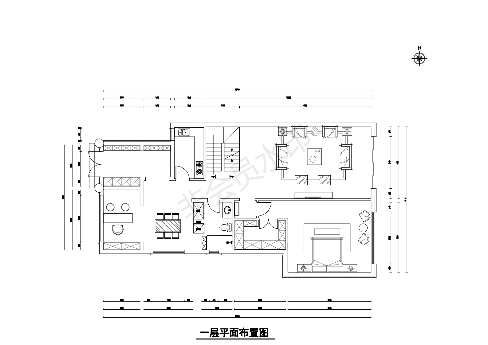
恒大金碧天下别墅户型解析:
多层户型各区功能明晰,方正又个性,厨卫厅房全明设计,通风采光极佳;动静分离、会客与休息清晰区分,互不干扰。
双阳台设计,且简洁实用的洗衣间与厨房共有一个阳台,让生活变得轻松。
整个设计细致而绰约,方正中见灵变。
舒适而充满情趣的二居,、功能布局合理,干湿分区,厨房与厅室洁污分区。
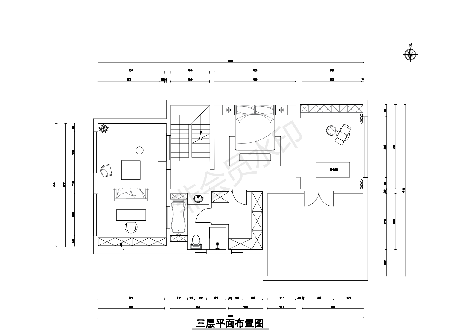
主卧方型飘窗无疑成为增大采光面的点睛之笔,大客厅配以弧型的生活阳台,开启阳光生活。
全采光,布局合理,生活空间宽敞自在,尽享舒适生活。
丰富的对外的空间,阳台设计,拓阔空间视野。
卧室客厅分离,动静分明的设计,以保护私密性为基本前提。
卧室主次分明,主卧配以观景飘窗,是欣赏鸟语花香的最佳角度。
客厅的通透设计,使空间感无限增强;
阳光无限的露台休闲生活,时时感受清新自然和勃勃生机。

一层平面布置图