石家庄
[切换]
集团
保定
唐山
鹦鹉螺
中国家装设计百强企业
咨询热线:400-999-8206
首页
taptap点点手机网页版
实景案例
taptap点点网服务网址
taptap点点链接
金舍装饰##taptap点点星际争霸2
taptap点点登录入口
taptap点点手机网页
taptap点点官方网址
热装楼盘
taptap点点
taptap点点登录APP
taptap点点亚洲体育
taptap点点官方网站app使用方法
五星服务
点点taptap官网app网址
私人订制
taptap点点官网登录入口
墅业精工
墅装瞬间
taptap点点官网
实景展示
明星人物
工程服务
软装配饰
装修问答
装修指南
家装攻略
装修选材
装修设计
家居装饰
taptapTCG彩票
品牌故事
taptapvip入口新闻
客户心声
加入taptapvip入口
快速报价
搜 索
当前位置:
首页
>
热装楼盘
>
taptap点点亚洲体育
> 国宾壹号137平三室二厅户型解析
国宾壹号137平三室二厅户型解析
来源:
taptapvip入口装饰
浏览:
次
更新时间:
2019-09-14 09:50:21
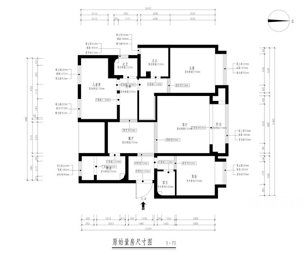
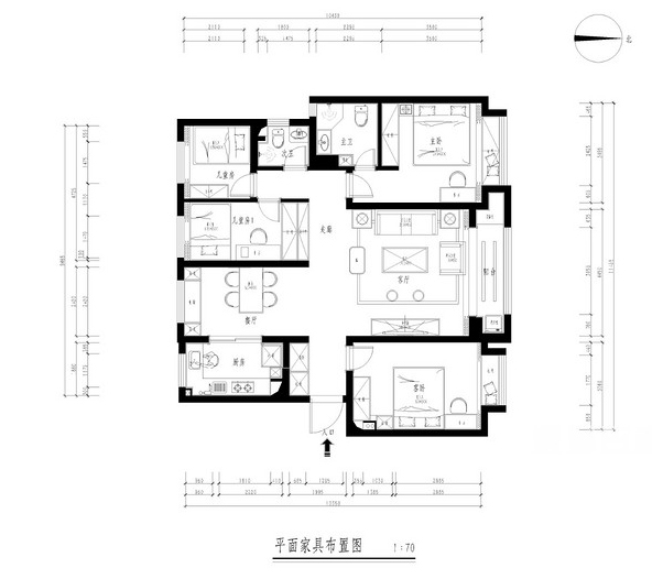
此户型采光比较好,但是各个空间功能区域分布不明确,空间利用不充分。主卧的衣帽间空间狭窄
1 将主卧衣帽间进行拆除,扩大儿童房空间
2 餐厅通往阳台的墙打通,餐厅面积增大。
上一篇:瀚林甲第149平米户型分析
下一篇:瀚林甲第88平米户型解析
服务设计师
擅长风格:
美式风格 中式风格
擅长户型:
别墅 跃层
设计理念:
创意与生活息息相关,灵感来自生活。
预约设计师
装修无忧 免费报价
立即获取报价
taptap点点手机网页版
相关案例
天山国宾壹号145平米简约美式装修实景
风格:
美式风格
户型:
三居
面积:
145㎡
天山国宾壹号188平米新中式风格装修实景
风格:
中式风格
户型:
四居
面积:
188㎡
国宾壹号210平米中式风格装修实景图
风格:
中式风格
户型:
跃层
面积:
210㎡
天山国宾壹号116平米北欧风格装修效果图
风格:
欧式风格
户型:
二居
面积:
116㎡
家装资讯
2025-08-20
●
别墅厨房装修:避开这些坑,做饭更轻松
2025-07-06
●
石家庄装修公司揭秘:法式风格吊顶的选择与装修要点
2025-06-27
●
石家庄别墅装修小课堂:欧式家具清洁保养全攻略
2025-06-17
●
石家庄室内装修:打造不压抑的高级意式风格
2025-06-13
●
石家庄夏季别墅装修,铺地板的关键注意事项
2025-06-12
●
家里装修有必要装新风系统吗?
快速报价
taptapvip入口装饰 只为别墅而生
获取报价
预约设计师
预约设计师