【项目名称】:东南智汇城
【项目面积】:120㎡
【设计风格】:台式风格
【设计主创】:曹小雨
╱案例初印象Impression╱
行经温润木色,彷彿林间漫游
以踏实沉稳步调,穿越溪水之涧
旋转的涡流,帶來鱼跃的喜乐
书中有话,居中有味
以眼前的盛景,换欣喜的张狂
为沉寂已久的空间
漫撒曙光
╱设计诠释annotation╱
此案例为石家庄taptapvip入口装饰-东南智汇城120平米台式风格装修效果图。台式风格体现一种大气和对称,表现出一种大户人家中厅堂的感觉,方方正正,大和归一。很多人都不懂台式风格的设计是什么样的,或许有些人觉得和日式风格差不多,室内设计中色彩多偏重于原木色,以及竹、藤、麻和其他天然材料颜色,其实台式风格注重的是室内空间简约、自然,没有纷繁复杂的装饰,仅用质朴的色彩加上线条感极强的设计手法,简简单单的感觉便能造出很有质感的空间。
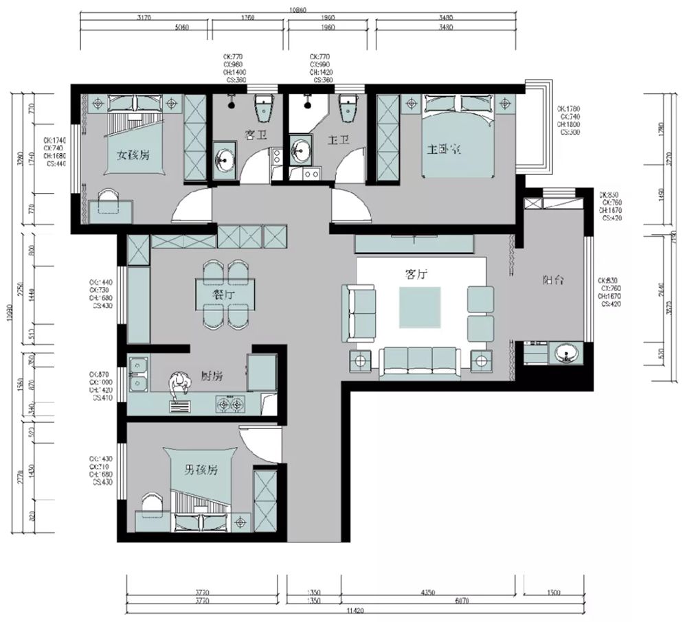
丨平面图—Plan丨

丨客厅—Living Room丨



丨餐厅—Dining Room丨


丨玄关—vestibule丨

丨卧室—Bedroom丨



丨厨房—Kitchen丨



用心设计
无须华丽的装饰与堆叠
将最纯粹的自我和情感释放其中
眼睛看到的,心里感受的
一定是一个极其沉静而本真的空间